Lejlighed på 115 m2 i Herning, Holmparken

Økonomi

Månedlig leje

7.600 KR.

Aconto vand

100 KR.

Aconto varme

900 KR.

Depositum

22.800 KR.

Forudbetalt leje

0 KR.

Samlet udgift*

31.400 KR.

* inkl. første måneds husleje

Beskrivelse

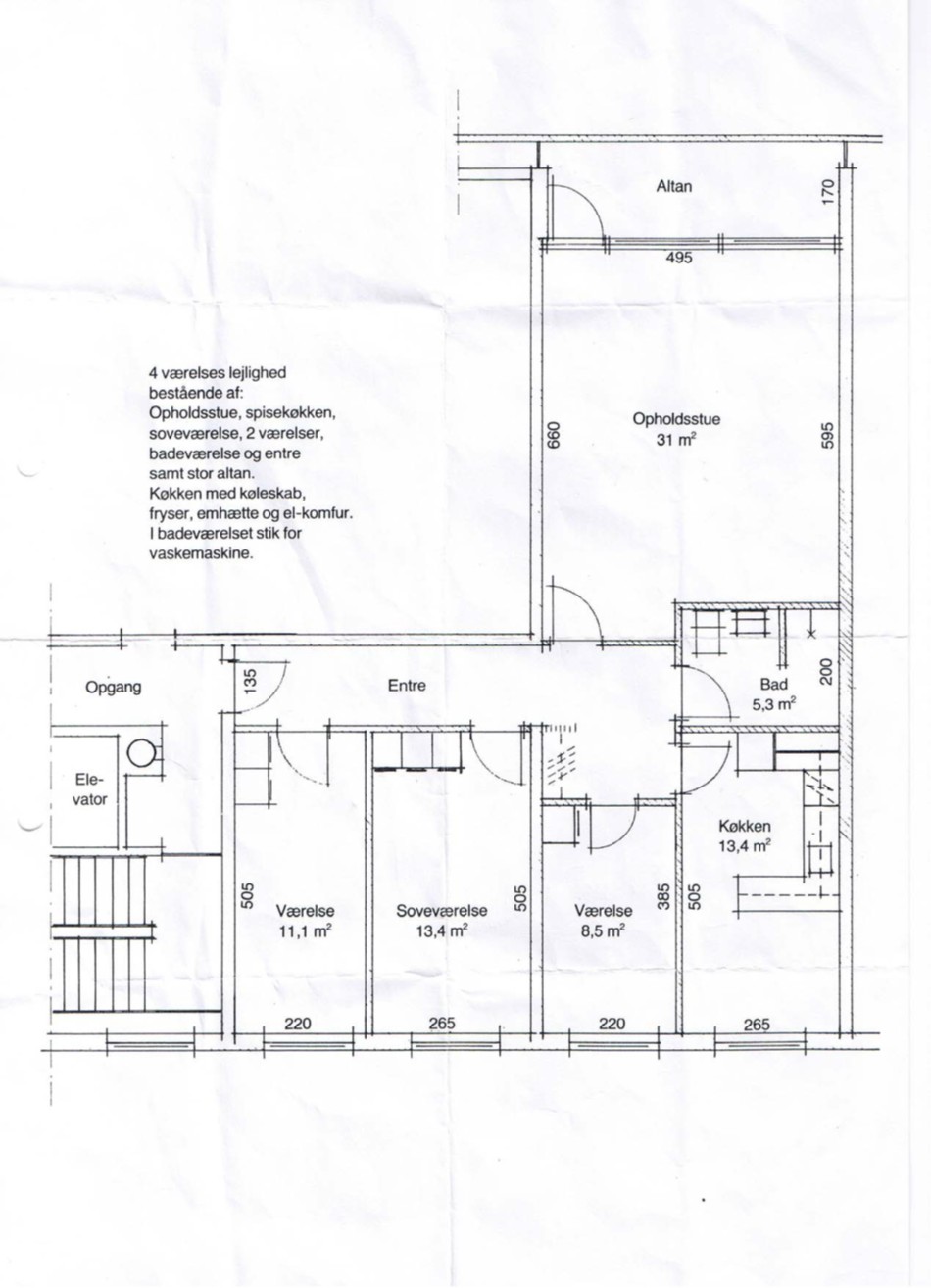
NYISTANDSAT 4-VÆRELSES LEJLIGHED I HERNING MEDALTAN OG UDSIGT

 Velkommen til denne lyse og rummelige 4-værelses lejlighed på øverste etage (3. sal) i det attraktive område Holmparken i Herning.

Lejligheden er nyistandsat med nyt køkken og nyt badeværelse,og fremstår særdeles indflytningsklar og velindrettet.

 

LEJLIGHEDEN INDEHOLDER

  • Elevator
  • Stor og lys stue med udgang til sydvestvendt, overdækket altan med smuk udsigt over byen
  • Tre gode soveværelser – alle med faste skabe
  • Nyistandsat køkken med spiseplads, opvaskemaskine og nye elementer
  • Flot nyt badeværelse med nye elementer
  • Entre og fordelingsgang
  • Parketgulve i alle rum

 

EJENDOMMEN OG OMRÅDET

Ejendommen ligger i roligeog grønne omgivelser med:

  • Indkøbsmuligheder i gåafstand
  • Herning Centret forbundet via cykelsti
  • Herning Golf Klub tæt på
  • Let tilkørsel til motorvej E18
  • Offentlig transport lige ved
  • Parkering lige ved døren inkl. ladestander til elbil


Desuden findes fælles vaskeri, pulterrum,cykelkælder og festsal.

Garage kan lejes efter aftale.

Bemærk: Køkken og bad erunder renovering – nye billeder følger snarest!

Lejlighedener klar til indflytning.

 

Øvrige oplysninger

Lejeperiode

Ubegrænset

Ledig fra

Snarest muligt

Boligareal

115 m2

Antal værelser

4

Etage

3

Delevenlig

Ja

Seniorvenlig

Ja

Altan/terasse

Ja

Elevator

Ja

Husdyr tilladt

Nej

Parkering

Ja

Energimærke

B

Altid gratis kontakt til udlejer

Alle udlejere på sitet er medlemmer af interesseorganisationen Danske Udlejere. Vi arbejder med professionelle udlejere og hører gerne fra dig, hvis du mod forventning oplever andet.

Rapportér et problem.