Kontor på 195 m2 i Kolding, Fredensgade

Økonomi

Månedlig leje

10.651 KR.

Aconto vand

200 KR.

Aconto varme

1.100 KR.

Depositum

31.953 KR.

Forudbetalt leje

0 KR.

Samlet udgift*

43.904 KR.

* inkl. første måneds husleje

Beskrivelse

Beliggenhed:

Centralt beliggende i centrum af Kolding med 4 min gang til gågade, butikker, busholdepladser. P-pladser er på gaden samt der kan aftales p-pladser i gården.

Ejendommen:

Ejendommen er opført i 1900, og er nyrenoveret 2011 og indeholder 5 erhvervslejemål, alle lejemål er i tip-top stand.

Indretning:

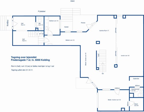
Kontormiljø på 195 m2, med kontor pladser til ca. 12-13 personer. Kontorlokalet er opdelt med glasvæg, samt med receptionsdisk ved indgangen fra åben gård. Ved indgang fra hall er der åbenkøkken med bred mellemgang til receptionsdisk, hvor der er plads til spisepladser til personalet. I den bageste del af lejemålet er der møderum, depot samt badeværelse og garderobe. Der er udgang til to overdækket altaner. Køkken - er indrettet med et mindre skabs arrangement, samt køleskab, keramisk komfur med ovn, emhætte og opvaskemaskine. Badeværelset - er med bruseniche og skabsparti med vask og stort spejl. Hall - der er fældes gæstetoilet. Overflader i lejemålet: Gulve – lakeret ask trægulv. Vægge – glatte hvidmalet. Lofter – glatte hvidmalet med lydplader. Vinduer – bondehusvinduer og døre. Lejemålet indeholder:1 mødelokale, 1 depotrum, 1 stort kontormiljø, 1 badeværelse, 1 køkken. 2 altaner. (Se plantegning).Udstyr: Keramisk Komfur med ovn, emhætte, køleskab, opvaskemaskine samt alarmanlæg. ​Se mere på bytømrer.dk

Øvrige oplysninger

Lejeperiode

Ubegrænset

Ledig fra

Snarest muligt

Areal

195 m2

Altid gratis kontakt til udlejer

Alle udlejere på sitet er medlemmer af interesseorganisationen Danske Udlejere. Vi arbejder med professionelle udlejere og hører gerne fra dig, hvis du mod forventning oplever andet.

Rapportér et problem.

UDLEJER:  Kaj Jensen